Work
Contact
About
FAQ
Work
Contact
About
FAQ
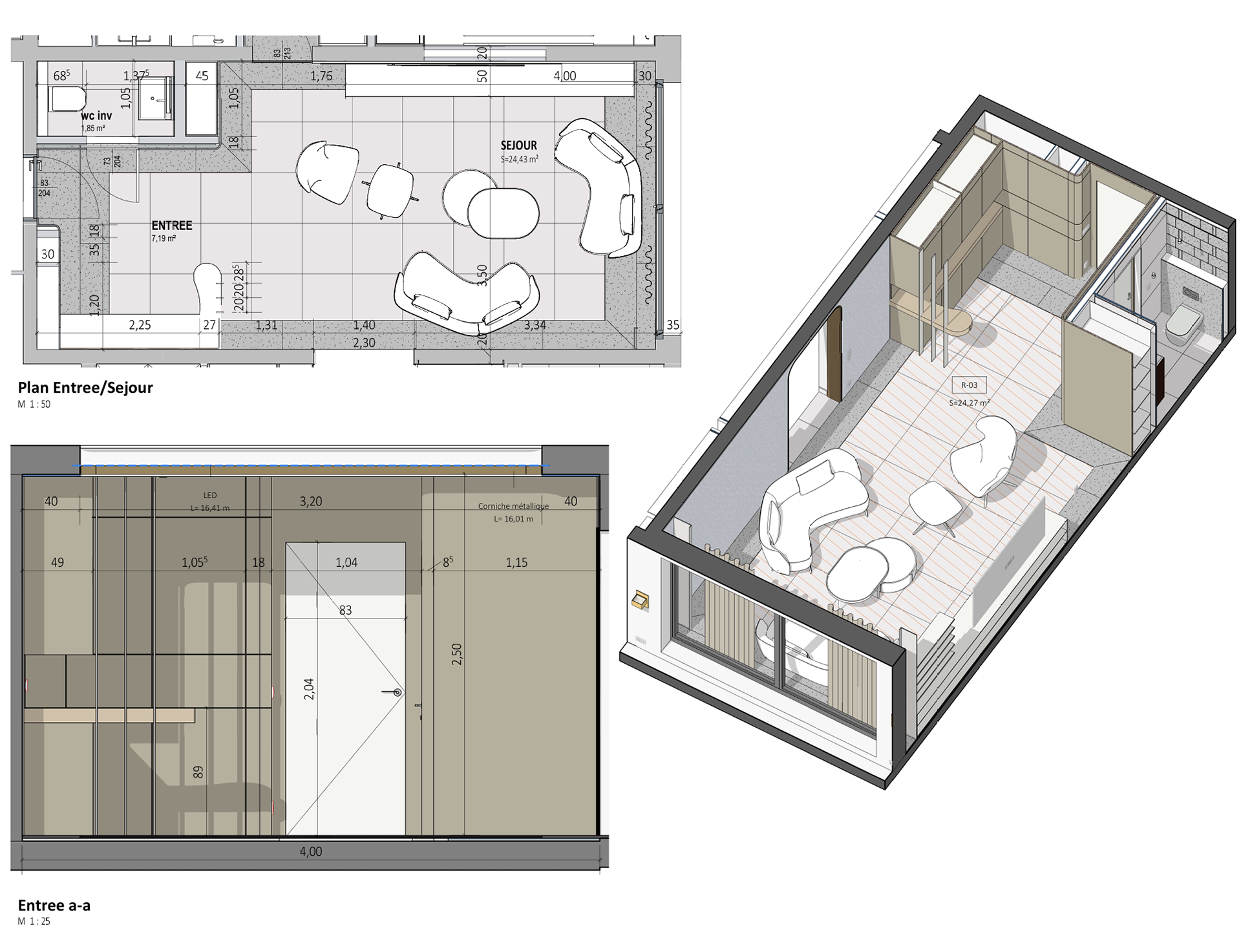
BIM Models
You may also like
Wien Residenz
2022
RiverSides
2023
Purity Spaces
2024
Forest Maison
2025
Vertigo Tower
2023
Timber Haven
2022
SlopeHaus
2021
Knowledge Hub
2024
UNIT Loft
2025
↑
Back to Top